Office / Commercial Space 2,100 to 6,360 sq. ft.
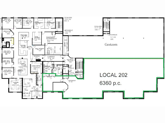
Commercial space / office for rent in downtown Saint-Jérôme at Suite 202. This space, located at the gateway to the Laurentians, offers a flexible area ranging from 2,100 to 6,360 sq. ft., ideal for offices or commercial use right in the city center. Situated near universities, restaurants, bars, parks, and public transportation, the location provides remarkable accessibility. The spaces feature large windows that offer abundant natural light and unobstructed views of the university and the Rivière du Nord. Place Lapointe stands out as one of the few Class-A buildings in Saint-Jérôme, offering tenants both an elevator and indoor parking. Base rent starting at $12/sq. ft./year + tax. Available immediately.
Commercial space/office for rent in downtown Saint-Jérôme, unit 202. This space, located at the gateway to the Laurentians, offers flexible floor space ranging from 2,100 to 6,360 sq ft, ideal for offices or retail spaces in the heart of downtown. Situated near universities, restaurants, bars, parks, and public transportation, the location offers exceptional accessibility. The spaces benefit from large windows, providing abundant natural light and an unobstructed view of the university and the Rivière du Nord. Place Lapointe stands out as one of the few Class A buildings in Saint-Jérôme, offering its occupants an elevator and indoor parking. Base rent starting at $12/year/sq ft + taxes. Available now.
Financials (USD)
Lease Rate Not Disclosed
Converted From CAD
Exchange Rate $0.72
Lease Rate Units SF/YR
Property Details
Street Address 10 Rue Saint Joseph
Deal Terms
Is this a sub-let? Available On Request
Broker Co-Op? Available On Request
Disclaimer: DealStream has not independently verified any of the information in this listing and makes no warranty as to its accuracy or completeness. This listing does not constitute an offer to sell, solicit or make an offer to buy an investment interest. Offers to sell, or the solicitation of offers to buy, any security can only be made through official offering documents, such as a subscription agreement and private placement memorandum. Read DealStream's Terms Of Use before responding to any listing. Learn how to stay safe in our marketplace.
Request Information
Want to learn more about this listing? Log in now. New to DealStream? Discover how artificial intelligence can help you find better deals! Sign up for a Free Account today and get your first Search Genius deal tomorrow.
Sign Up

